Meter Enclosures
Pre-wired & Configured Metering Solution
Expanding existing switchgear or installing new metering capability can be challenging due to space limitations, downtime and installation and equipment costs. GE Vernova’s Multilin™ Meter Enclosure is a pre-wired configured, economical solution for both retrofit expansions and small scale meter installations that allows the expansion of existing switchgear capability without expensive and time-consuming design.
When ordered as a meter option the enclosure provides a factory pre-wired, installation-ready metering solution that further drives energy cost savings, by enabling the measurement of key energy usage information along multiple metering points for new or existing systems.
Key Benefits
- Easy, rapid installation for new or existing switchgear capability through a factory-wired, tested enclosure with installed meter, eliminating ordering, wiring and installation errors
- Extend metering capability with new systems and existing switchgear without system installation downtime
- Factory tested and installation ready with guaranteed compatibility with GE Vernova’s EPM meter family
- Simplified ordering through an enclosure option ensures correct pre-wired meter compatible delivery
- NEMA 1 tested and UL/cUL certified
- Suitable for both new and retrofit meter installations supporting the EPM 2200, 6000, 6010 & 7000 meters
Meter Enclosures
Pre-wired & Configured Metering Solution
Expanding existing switchgear or installing new metering capability can be challenging due to space limitations, downtime and installation and equipment costs. GE Vernova’s Multilin™ Meter Enclosure is a pre-wired configured, economical solution for both retrofit expansions and small scale meter installations that allows the expansion of existing switchgear capability without expensive and time-consuming design.
When ordered as a meter option the enclosure provides a factory pre-wired, installation-ready metering solution that further drives energy cost savings, by enabling the measurement of key energy usage information along multiple metering points for new or existing systems.
Key Benefits
- Easy, rapid installation for new or existing switchgear capability through a factory-wired, tested enclosure with installed meter, eliminating ordering, wiring and installation errors
- Extend metering capability with new systems and existing switchgear without system installation downtime
- Factory tested and installation ready with guaranteed compatibility with GE Vernova’s EPM meter family
- Simplified ordering through an enclosure option ensures correct pre-wired meter compatible delivery
- NEMA 1 tested and UL/cUL certified
- Suitable for both new and retrofit meter installations supporting the EPM 2200, 6000, 6010 & 7000 meters
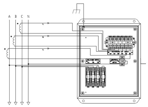
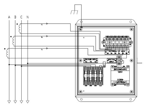
Meter Enclosure Assembly
The installation of GE Vernova’s Multilin Meter Enclosure provides customers with a simple, easy to install solution that adds advanced metering capabilities while minimizing system downtime.
The Multilin Meter Enclosure is UL/cUL certified and NEMA 1 rated, making it ideal for indoor environments. It is provided in two voltage configurations (120-240V and 277V) to ensure compatibility with existing systems.
Each meter enclosure is pre-wired and configured with an EPM meter, voltage fuses, shorting block for current transformers and a control power transformer (for 277V power systems), eliminating field wiring and installation issues.

Typical Wiring


Dimensions

